海老名の緑陰山居
神奈川県海老名市
密集市街地に「市中の山居」を建てる
建設地は、神奈川県の中央を南北に流れる相模川東側の相模台地に位置し、西側には丹沢山系を間近に眺めることができる。奈良時代には相模地方の中心地として国分寺・国分尼寺が建てられ、明治以降は絹産業運搬の交通の要所として鉄道が引かれ、現在は首都圏の近郊住宅街として宅地化が進んでいる。
一般的に自然素材を活かした開放的な家は、敷地に余裕がある郊外宅地や田園風景が広がる地域に似合っていると考えられがちである。確かに、四方を建物で囲まれている今回敷地の様に、準防火地域に指定されている密集市街地での計画には、法令上も工事の施工面でも制約が多い。しかし、だからこそ街中の雑踏を忘れ、四季の変化を身近に感じながらの暮らしに人は魅かれるのであろう。
目指したのは、茶室の露地空間のようなひっそりとした小庭を備えた「市中の山居」である。旗状露地を歩きながら季節を感じ、建物内に入れば喧噪とは別世界の静寂な室内に身を置くことができる家。和瓦葺き屋根・化粧野地現し・漆喰塗り真壁・焼杉羽目板張りの建物を、黒塀の庭が囲む計画となった。近年の土壁や無垢板の防火性能は研究成果により、このような密集地でも実現可能となっている。

上空から見た建物の屋根形と敷地(右上…鉄平石舗装の露地 右下…黒塀で囲まれた坪庭)

建物南西側外観

建物無南西側の外観 外壁は27mm厚焼杉板張と土佐漆喰塗り。竣工後1年経過し、黒塀に囲まれた植栽が成長してきた。
気候風土に応じた計画は綿密な調査から始まる
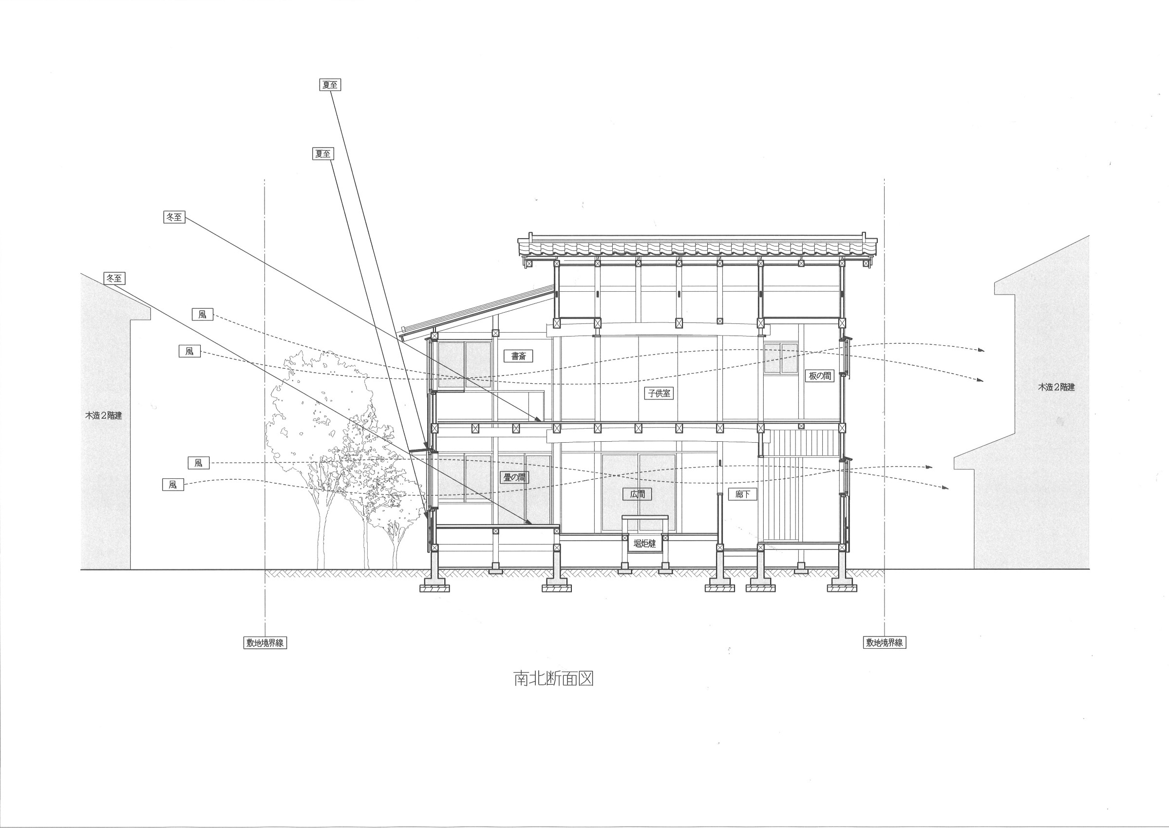
気候風土に適応した住宅とは、計画地に特有の気象条件や周囲の環境に合わせて計画された建物を指す。一年を通じての風向き、太陽高度、気温と湿度の変化を蓄積された情報から読み取り、敷地の状況に応じ、無理のない生活を続けられるように条件を探り出すことから設計を始めた。
年間を通じ南からの風が吹く比較的温暖な地域であるが、周囲に建物が立ち並んでいる為、南北隣地の空地からの夏の通風と冬の直射光導入を考えた。幸い狙い通りの効果があり、密集地内にも関わらず風通しも良く、冬の日中は日当たりで気持ちよく開放的な生活が続けられている。


【左】建物位置と周囲の関係配置図 通風と採光の効率を上げるために建物形態と窓の位置を慎重に決める 【右】太陽高度や風の流れを示した断面図 敷地が狭い場合、深い軒の出が難しい場合、簾や葦簀を活用して日射遮蔽を行う
室内環境を示す温度変化グラフ
外気温と室内温度と差、各部屋ごとの温度差などを見ることは、ほどほどに快適でエネルギーを無駄に使い過ぎない生活に繋がる


【左】年間を通じて1階2階の計4ケ所に設置した記録計は、比較的小規模なこの家ではどこの部屋も同じ室温で維持されていることを示している。 【右】冬の晴れた日は日中室温があがるので、エアコンは朝と夜の稼働で済んでいることがわかる。
ポイント
POINT
1
地域の材を使い、手仕事で建てる
POINT
2
POINT
3
建物の概要
神奈川県海老名市
6地域
2020年5月
2階建て
84.28㎡
【柱・梁】埼玉県産西川材 桧・杉 【壁】埼玉県産荒木田土
【種類】布基礎 【柱脚】土台仕様
【屋根】三洲いぶし瓦葺き・トントン下葺き 【壁】焼杉目板張り・漆喰仕上 【主な窓】アルミサッシ
【床】サワラ板張り・藁畳敷き 【壁】土中塗り仕舞 【天井】サワラ野地板現し
【床】フォレストボード40mm 【壁】フォレストボード40mm 【天井】ウッドファイバー90mm
1.291W/㎡K
0.84
1項一号ハ(1)(ⅰ)及び(2)(ⅰ)(ⅱ)
テーマと要素
1
様式・形態・空間構成
天井を高く設定し、引き戸形式の内部建具で空間を仕切り、多目的な使用に対応できる様にした。内外の境界部は、庭との一体感、採光・通風効果に有利な大きな窓を設けた。
2
構工法
大きな断面の材を部材を現して使い、外壁を竹小舞土壁とした。屋根は和瓦葺き、外壁は一部漆喰塗り焼杉羽目板張り、室内床は厚板張りと藁床畳敷とした。窓には明かり障子を設けた。
3
材料・生産体制
材木は建設地から40㎞の地域材(埼玉県西川材)を地域の大工が中心となって建てた。将来の維持管理の為に建て主と各職方んが直接契約を結ぶ建て主直営方式で工事を進めた。
4
景観形成
海老名市のシンボルとなってる国分寺七重の塔の屋根イメージをヒントに屋根形をまとめ、地域の植生に応じた広葉樹中心の外部植栽を設けた。
5
住まい方
家族4人で暮らすための比較的小さな住まいを、夏は広く冬は小さく暮らしている。窓外の簾や葦簀を利用し、庭の水やりと植栽の手入れなど季節に応じた生活を楽しんでいる。
つくり手のご紹介
前の事例
次の事例





